Обяви За нас Контакти
Продава 2-СТАЕН
град София, Център
ул. Панагюрище
190 500 €
372 585.62 лв.

(2 323 €, 4 543.39 лв./m2)
Цената е с включено ДДС
Коригирана в 16:21 на 16 октомври, 2025 год.
Обявата е посетена 147 пъти.
Площ:
82 m2
Етаж:
1-ви от 5
Строителство:
Тухла, Ще бъде въведен в експлоатация 2025 г.

Описание на имота:


ВЕЧЕ С АКТ 15! Ексклузивна оферта без комисиона от купувача!
Представяме Ви двустаен апартамент в новострояща се бутикова сграда, разположена в центъра на София, в близост до Лъвов мост и бул. Сливница.
Очакван Акт 16 до края на 2025г.
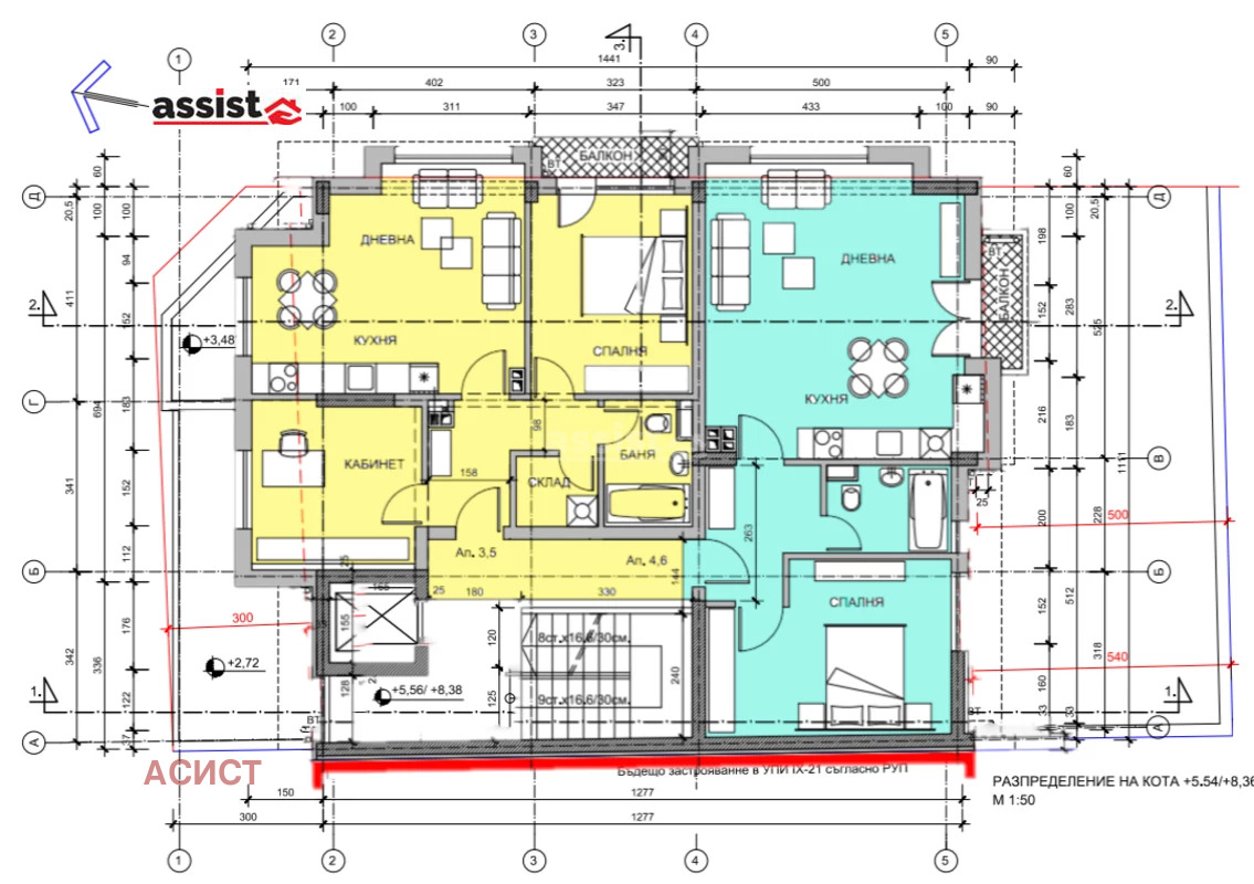
Основни характеристики: площ: 82 кв.м, ет. 1 от 5
Разпределение: дневна с кухненски бокс, спалня, баня с тоалетна, тераса.
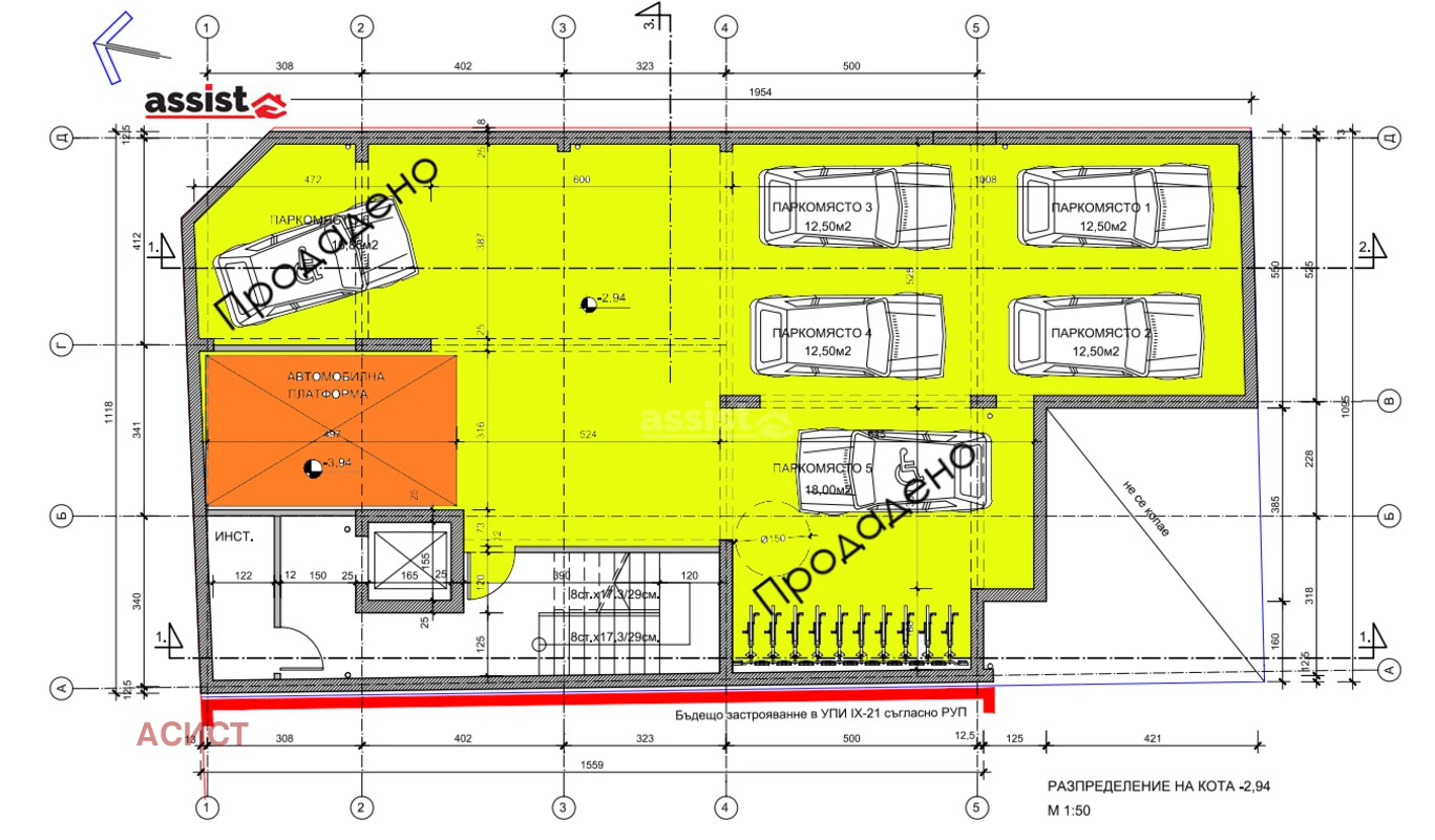
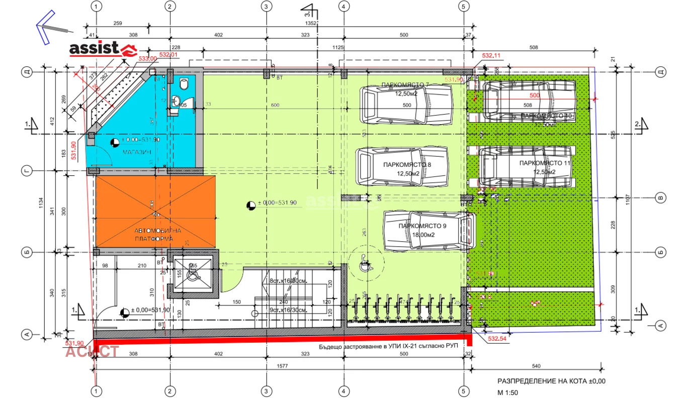
Допълнително: възможност за закупуване на паркоместа на подземно ниво и ниво партер.
Сградата предлага: петкамерна дограма с трислоен стъклопакет.
Общи части от гранит и алуминиеви парапети - хидравличен пътнически асансьор (5-6 човека).
Автомобилен електрически асансьор.
Метална входна врата.
Тераси с гранитогрес и алуминиеви парапети с висококачествено закалено стъкло.
Отопление: електричество.
Локация: в близост до спирки на автобусни линии 11, 20, 20М, 21, 22, 22Б, 309, 404, 78 и 79; тролейбусни линии 6 и 9; метростанция Лъвов мост - Учебни заведения: СМГ, Софийска професионална гимназия по туризъм, Първа английска езикова гимназия, Международен банков институт, Факултет по журналистика и масова комуникация, 1 СУ 'Пенчо Славейков' - Детски градини: 'Бръмбазък', 104 'Моят свят', Частен детски център 'Цветна градина Монтесори' Магазини: Лидл, Билла Заведения: множество заведения за хранене и барове в района
Код за огледи: 50961
Водещ брокер: Мариян Няголов 0882 418 197
Последвайте ни в социалните мрежи, където също може да разгледате нашите актуални предложения.
Виж всички обяви в assist.bazar.bg или тук
Особености
Тухла
Асансьор
С паркинг
Контрол на достъпа
За контакт:
0882418197
Брокер:
Мариян Няголов
0882418197
Още оферти от брокера: Продава | Дава под наем | Купува | Наема
Агенция:
АСИСТ
0888 238 737
АСИСТ logo
Медал за прослужено време
В imot.bg от 2018 г.
assist.imot.bg
Адрес:
област София, гр. София, бул.Гоце Делчев 115 ет.2
http://www.assistproperty.net
ИЗПРАТИ ЗАПИТВАНЕ
ИЗПРАТИ ЗАПИТВАНЕТО

Продава 2-СТАЕН
град София, Център
ул. Панагюрище
Обява: 1b169391609531435

190 500 €
372 585.62 лв.
(2 323 €, 4 543.39 лв./m2)

Цената е с включено ДДС
ЗАПАЗИ ОБЯВАТА

Местоположение: град София, Център, ул. Панагюрище

Допълнителни данни за имотите в района и сравнение с други райони: Търсене в АРХИВ 2013 - 2025 г.











Добави/редактирай
вид имот и район
*Средните цени са определени чрез медиана стойност.